
Kite Kriol
Localização: Praia de Carlota, Sal Rei, Boa Vista, CV
Ano: 2019
Tipo: Comercial, restauração, desportes náuticos - Imagem de marca
Cliente: Privado
Superfície: 400 m²
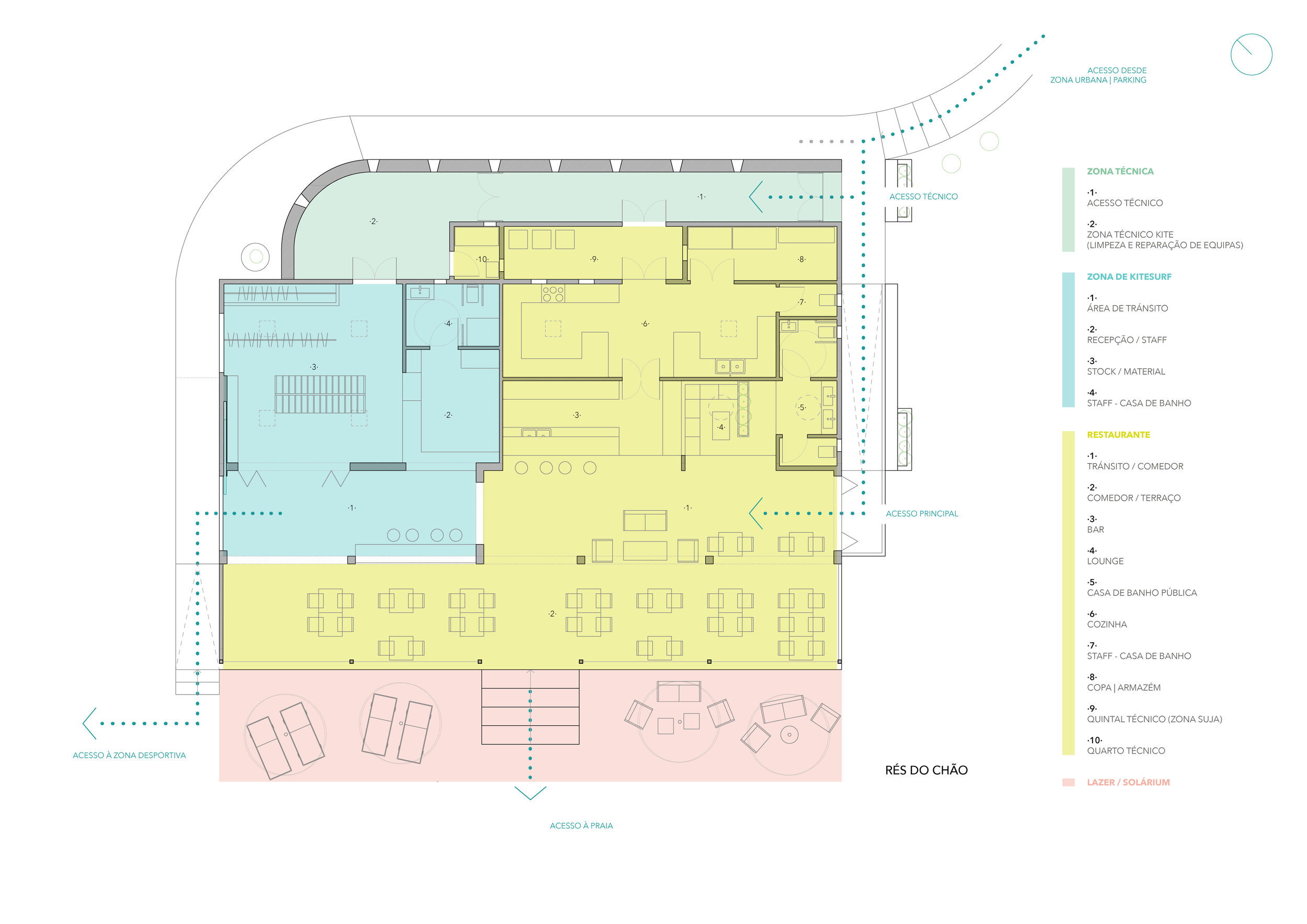
A premissa central do novo clube de desportes náuticos Kite Kriol é criar um espaço belo e agradável, com um funcionamento óptimo que atenda perfeitamente aos desejos dos clientes e os requisitos da entidade concessionária para um clube náutico e restaurante de primeira classe.
A proposta presta especial atenção à localização, ao funcionamento e às circulações entre os diferentes espaços que acolhem usos variados, como atividades náuticas, lazer, bar e restaurante, para garantir uma conexão fluida e eficiente.
O enfoque do projeto tem como objetivo central consolidar todo o programa numa única estrutura simples e compacta, evitando a necessidade de ocupar a totalidade do terreno. A proposta materializa-se numa unidade volumétrica de madeira que se apresenta de forma neutra e harmoniosa a partir de todas as perspectivas, sem elementos discordantes ou chamativos que possam perturbar o ambiente. Além disso, esta estrutura eleva-se acima do nível do solo e da praia para permitir a passagem da areia e reduzir o impacto ambiental.
Location: Praia de Carlota, Sal Rei, Boa Vista, CV
Year: 2019
Type: Commercial, catering, watersports - Brand image
Client: Private
Area: 400 m²
The central premise of the new Kite Kriol water sports club is to create a beautiful and pleasant space with optimal functionality that fully meets the clients' desires and the concessionaire's requirements for a first-class yacht club and restaurant.
The proposal places special emphasis on the location, operations, and circulation between the various spaces, which accommodate a range of activities such as water sports, leisure, bar, and restaurant, ensuring a smooth and efficient connection.
The focus of the project is to consolidate the entire program into a single, simple, and compact structure, avoiding the need to occupy the entire plot. The proposal materializes as a volumetric wooden unit that presents itself in a neutral and harmonious way from all perspectives, without any discordant or eye-catching elements that could disrupt the environment. Additionally, this structure is elevated above the ground level and beach to allow the passage of sand and minimize environmental impact.